© 2012 West Key Properties Ltd


Two Detached Houses
Old plans show the site for this small development as a meadow directly across the
stream from a traditional Hebridean long-
West Key Properties working closely with architect CiAO have designed a subdued development
of houses based on the traditional Hebridean long-
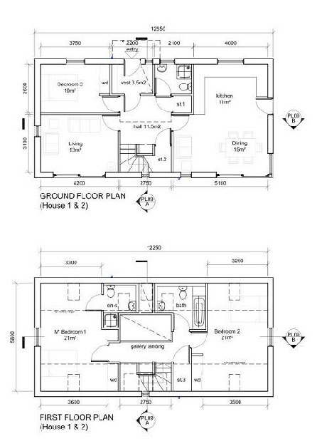
Each house has a high ceilinged entry hall, open plan kitchen work space, warm sleeping and living areas all complemented by abundant natural light streaming in through floor to ceiling windows or carefully positioned skylights.
Mowing and clearing the meadow